1
/
Terrain de construction à Faro
Terrain urbain pour la construction d’une maison, situé au cœur de la ville de Faro, dans un quartier central et très prisé, très recherché tant pour son logement propre que pour l’investissement.
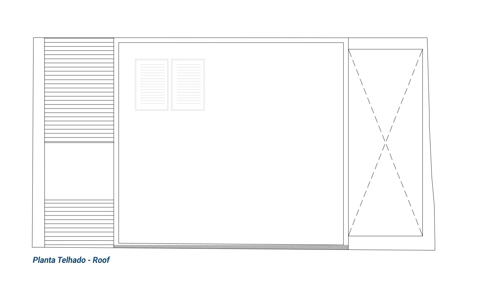
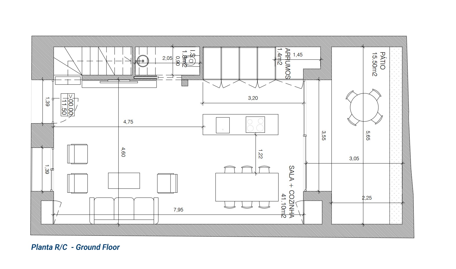
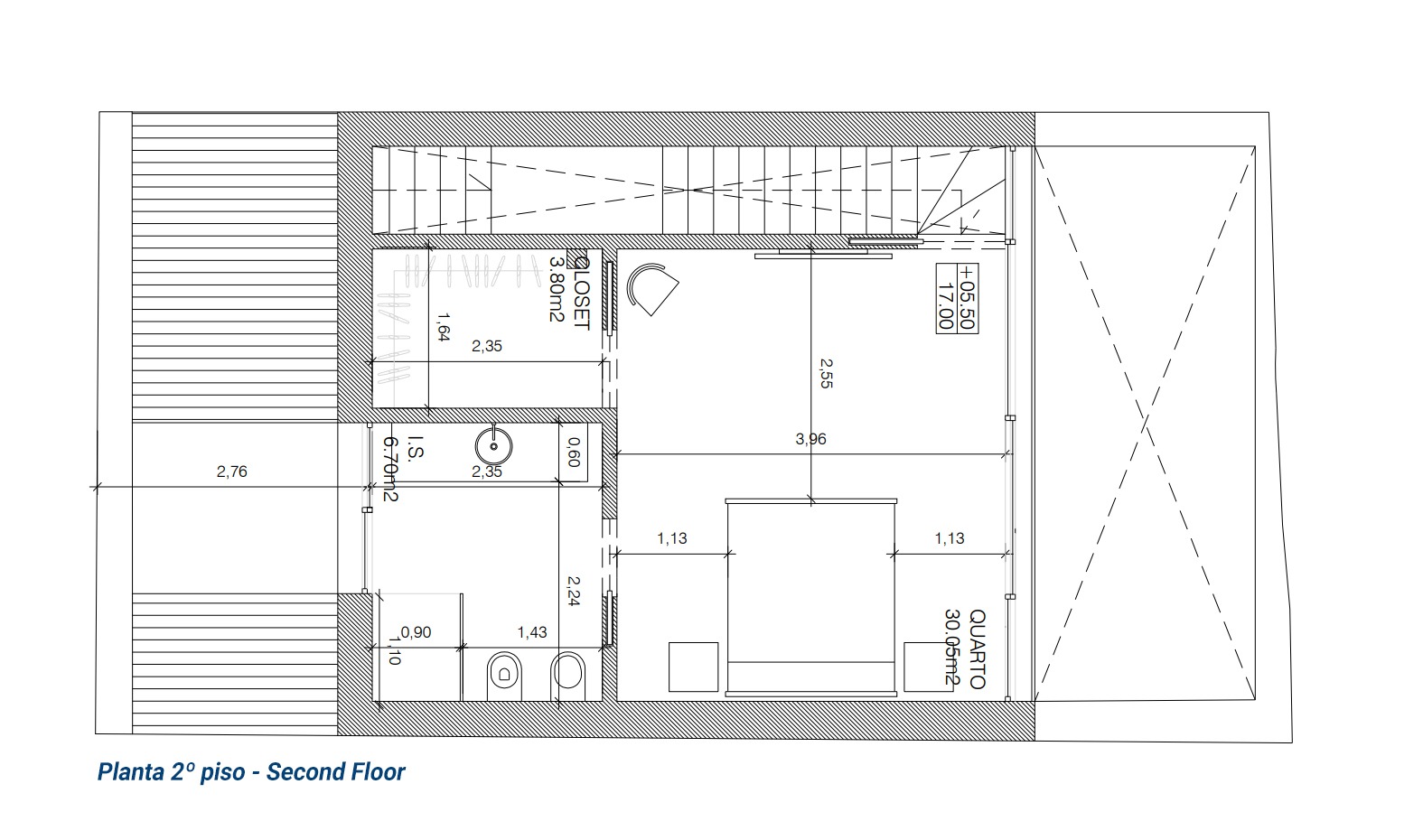
Le terrain a bénéficié d’un projet approuvé en 2022 pour la construction d’une villa de 3 chambres avec piscine, ce qui représente une excellente opportunité pour le futur propriétaire.
Si désiré, l’acheteur peut choisir de soumettre à nouveau le même projet ou d’apporter des modifications selon ses besoins et préférences.
L’emplacement est vraiment privilégié, à seulement quelques minutes à pied de Largo do Carmo, permettant un accès piéton facile et rapide à un large éventail de commerces, services, restaurants, écoles et transports.
Une occasion rare de construire votre maison en centre-ville ou d’investir dans une zone très demandée et appréciée.
Pour plus d’informations, n’hésitez pas à nous contacter.
Le terrain a bénéficié d’un projet approuvé en 2022 pour la construction d’une villa de 3 chambres avec piscine, ce qui représente une excellente opportunité pour le futur propriétaire.
Si désiré, l’acheteur peut choisir de soumettre à nouveau le même projet ou d’apporter des modifications selon ses besoins et préférences.
L’emplacement est vraiment privilégié, à seulement quelques minutes à pied de Largo do Carmo, permettant un accès piéton facile et rapide à un large éventail de commerces, services, restaurants, écoles et transports.
Une occasion rare de construire votre maison en centre-ville ou d’investir dans une zone très demandée et appréciée.
Pour plus d’informations, n’hésitez pas à nous contacter.
Caractéristiques de la propriété
- Vue sur la ville
- Certification énergétique: Pas applicable
- Aéroport: 6 Kms
Emplacement
Terrain - , Faro, à vendre
Valeur de vente
240 000 €
Convertisseur de devises
Réf.: LPGP 1061
- 58 m2
- 58 m2
Pedro Henriques
Mobile: +351 911 701 515
(Appel réseau mobile national)
Email: pedro@lusitaniaproperties.pt
En savoir plusRenseigner
fr